珠海高新区区60万方厂房分层出售
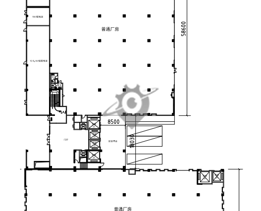
【项目地址】珠海高新区唐家湾镇 【项目亮点】拎机投产 1、高层高、高承重、大平层; 2、高标准交付:金刚砂固化地面,乳胶漆上墙,一次消防竣备,150w/㎡配电; 3、中空玻璃 隔音降噪降耗; 4、独立中央卸货平台,配有吊装平台,100%做到人货分离; 5、场地95%使用率; 6、物业全程保姆式服务; 7、超大港湾餐厅,保障饮食安全; 8、高标配套:独立商业生活区与厂区邻里; 9、稀缺6席独栋厂房资源,企业总部基地最佳选择。 【项目类型】独栋厂房、高标准厂房、普通厂房3类产品,同时配有城市级配套,人才公寓及商业、食堂、学校等 【物业信息】 项目体量:总建筑面积60万㎡,一期25万㎡ 交付时间:分期交付,一期2022年底,整体于2023年底前竣工交付。 厂房高标准交付,高层高、高荷载、大平层,拎机可投产。 层高最高达7.8米,单层面积超5000平方米,荷载2吨,货梯荷载高达5吨,每栋均配备独立卸货平台,实现人货分流。 【交通便利】 1、随着深中通道和深珠通道,前往深圳只需要40分钟以内; 2、靠近珠海、那洲两大高速出口、通达广州、深圳、毗邻金溪大道,三大快速路加持,进一步拉近唐家与主城区的距离,前往市区15分钟以内; 3、位于京唐西路主干道,双向六车道,交通便利。 【周边配套】 1、周边制造业产业基础浓厚,进驻企业以智能制造、电子设备、智能电网、集成电路、医疗器械为主。随着政府产业规划的引导带动,智能制造、生物医药、集成电路与半导体的园区及企业集聚效应进一步加强; 2、周边拥有北理工大学珠海学院、北京师范大学珠海学院、金鼎中学等重点学校,大学林立,技术人才用工招聘方便; 3、周边靠近宝龙城、金鼎市场等主要商圈,生活便利。 【项目详细介绍】 主要产品包括高标准厂房、标准厂房、独栋。配套食堂、商业和地下室。 目前一期招租面积约21万㎡,设置1000-5000㎡、独栋4000㎡多户型。 欢迎各企业家垂询。









推荐厂房
MORE最新厂房
MORE1
香洲区独栋宿舍出租空地大停车场可用原房东直租无杂费多层价值高2
金湾区红旗镇原房东超大空地空地超大可进大车适合多行业水电到位3
斗门区井岸镇一楼空地超大可进大车适合多种行业出租白藤附近4
斗门区井岸镇小面积一楼原房东直租价格超抵空地大可进大车无杂费5
斗门区白蕉镇一楼小面积厂房空地超大可多开门原房东直租无杂费6
斗门区白蕉镇一楼原房东小面积层高6米水电到位适合仓储加工等等7
金湾区三灶镇独门独院空地超大适合多行业原房东直租中高近10米8
香洲区一楼小面积原房东超大空地可进大车适合多行业现成办公室9
金湾区红旗镇独栋二楼以上空地超大精装价可谈适合电商办公等等10
独门独院标准厂房出租厂房三层共5400平方两部2吨货